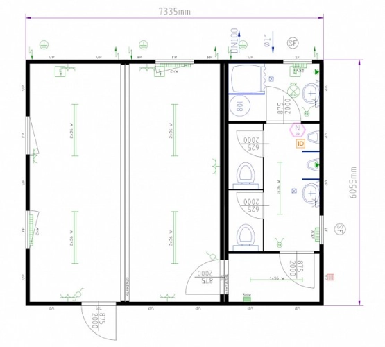
Vnější rozměry: 7335 x 6055 x 2591 mm
Obytné kontejnery jsou svou konstrukcí samonosné a jsou přepravovány a dodávány jako stavba na klíč. Napevno svařený ocelový rám odolný proti zkroucení tvoří prostorovou jednotku. Rámy jsou upraveny dle norem ISO a mohou být sestavovány a spojovány dle potřeby vedle sebe, za sebou nebo nad sebou. Vypuštěním venkovních stěn, nebo zabudováním dělících příček mohou být tvořeny libovolně velké prostory.
Nezávazně poptat